Discover Industrial Blueprint Designs
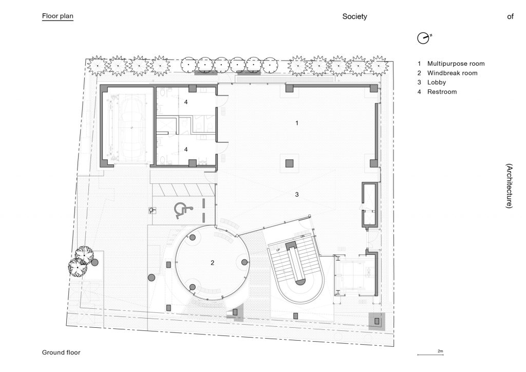
This section features a curated selection of detailed blueprints illustrating AICAD Services’ expert CAD drafting capabilities for factories and warehouses.






This section features a curated selection of detailed blueprints illustrating AICAD Services’ expert CAD drafting capabilities for factories and warehouses.





