Professional CAD Services for Interior & Exterior Designers

Comprehensive CAD Services Overview

Explore our specialized CAD drafting solutions crafted to bring your design visions to life with precision and clarity.

Interior Space Planning

We create detailed interior layouts that maximize functionality while reflecting your design intent.

Exterior Design Drafting

Providing accurate exterior plans that enhance project communication and execution effectiveness.

Millwork & Custom Details

Delivering precise millwork drawings that ensure craftsmanship and design integrity on every project.

Precision CAD Drafting Tailored to Your Design Needs

Explore how our expert CAD services translate your creative visions into detailed, actionable plans that streamline project execution.


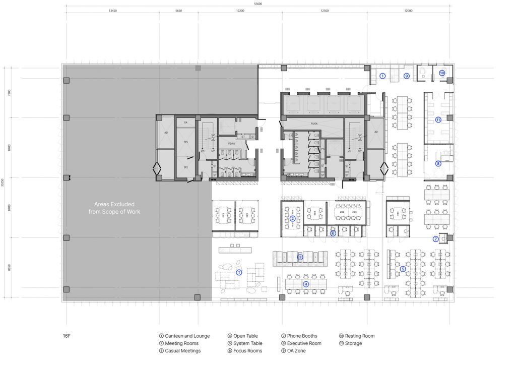
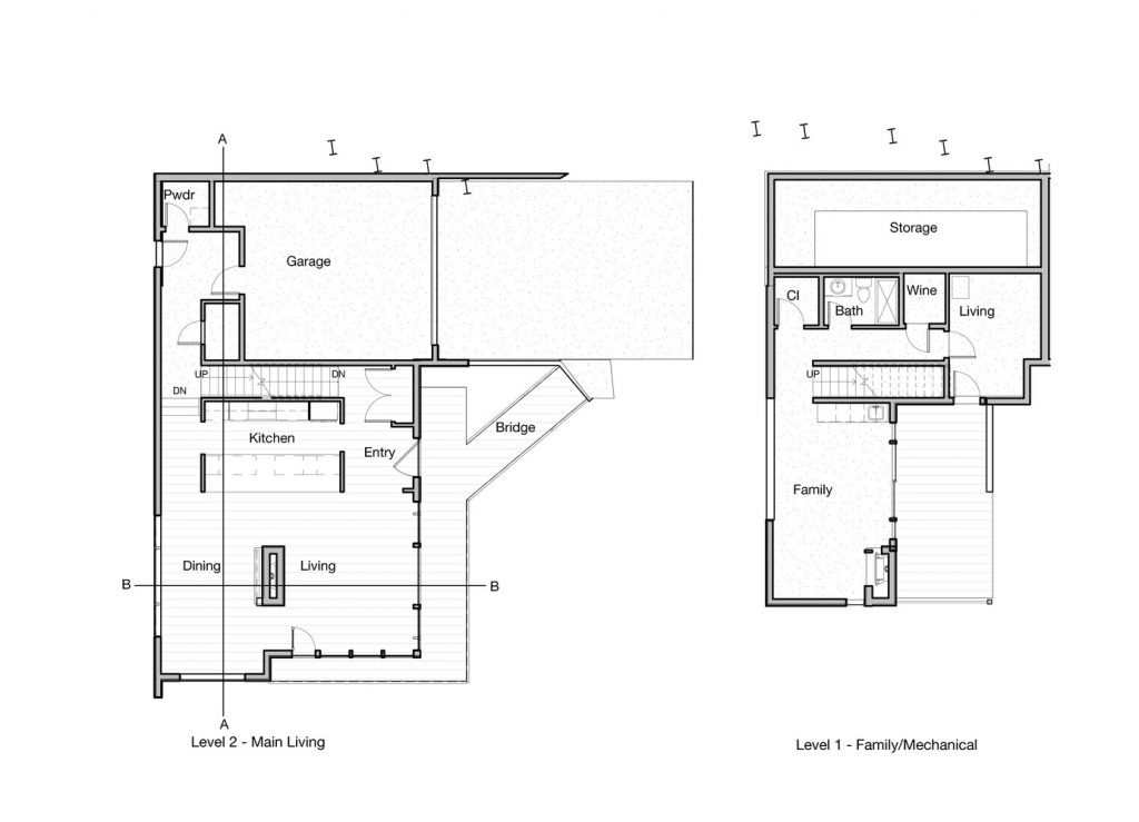
Accurate Space Planning

Our precise space planning drawings help visualize layouts, ensuring optimal flow and function for your interior and exterior designs.

Detailed Millwork Drawings

We provide comprehensive millwork drafting that clearly communicates custom design elements to contractors, reducing errors and delays.

Fast Turnaround & Affordability

Benefit from our quick, cost-effective CAD drafting services that keep your projects on schedule without compromising quality.