Discover Our Residential Designs
Browse a curated selection of residential blueprints that reflect our architectural precision and innovative design solutions.

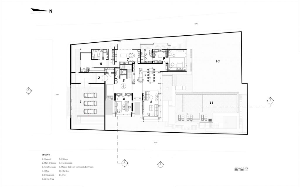
Modern Family Home Layout
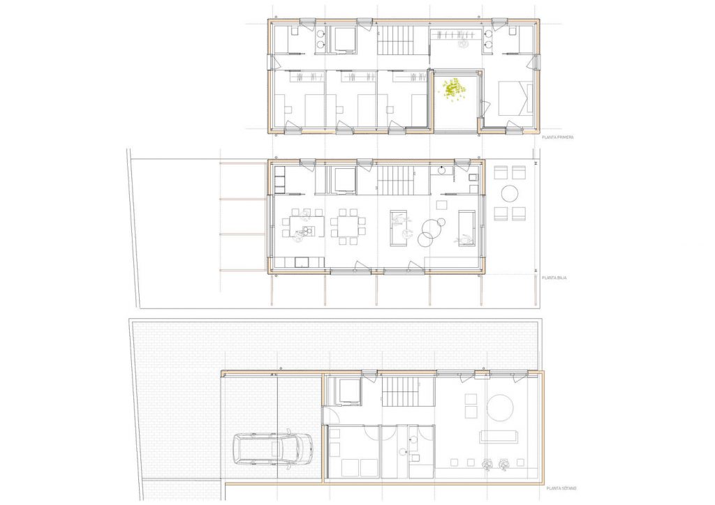
Contemporary Residence

Cozy Cottage Blueprint
Charming Country Home

Urban Loft Floor Plan
Stylish City Apartment

