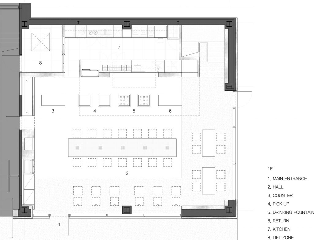
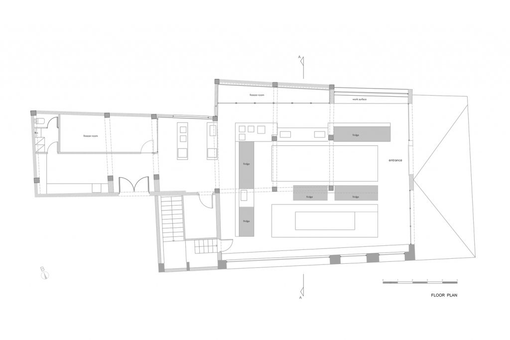
Discover Our Retail Blueprint Collection
Delve into standout retail designs that reflect AICAD Services’ innovative CAD expertise and tailored solutions for dynamic retail environments.




Delve into standout retail designs that reflect AICAD Services’ innovative CAD expertise and tailored solutions for dynamic retail environments.



