Subcontractors: Scale Your Bid Capacity Overnight. Permit Plans in 48 Hours.

Stop turning down jobs because you’re stuck drafting. We provide white-label shop drawings and permit sets so you can focus on the install. Get a Sample Shop Drawing

Your Invisible Drafting Department

100% White-Label

We use YOUR title block and YOUR logo. Your clients will think you drew it in-house.

48-Hour Turnaround

We work while you sleep. Submit a sketch today, get a permit set tomorrow.

💰

Fixed Flat-Rate Pricing

Know your margins before you bid. No hidden hourly fees.

Specialized Support for Your Trade

  • HVAC: Ductwork layouts & Manual J/D/S calculations.
  • Electrical: Load calculations & single-line diagrams.
  • Plumbing: Isometric risers & gas line schematics.
  • Framing: Structural details & lumber takeoffs.

Guaranteed Compliance

We draft to 2021 IBC/IRC standards. If a city reviewer redlines our drafting error, we fix it in 24 hours for free.

Ready to Offload Your Drafting?

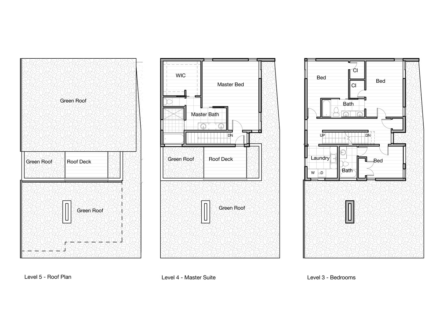
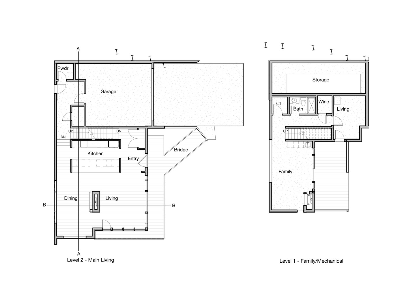
Shop Drawings

We create detailed shop drawings that guide precise fabrication and installation on site.

Coordination Drawings

Our coordination drawings help minimize clashes and streamline multi-trade project workflows.

As-Built Drawings

Accurate as-built drawings capture the final installation details for future reference and compliance.